QUY TRÌNH THI CÔNG PHÒNG KHÁM NHA KHOA – LÀM ĐÚNG NGAY TỪ ĐẦU ĐỂ KHÔNG PHẢI SỬA VỀ SAU

Giá: 0 VNĐ Liên Hệ
    Mã Sản Phẩm:
  • :

    Trợ Giúp Tư Vấn Khách Hàng

    0989 806 982  (Hồ Chí Minh)
    090 625 11102  (Hà Nội)

Mô Tả Sản Phẩm

Vì sao Bác sĩ nên cẩn trọng khi thi công phòng khám? Hầu hết các Bác sĩ khi mở phòng khám đều giỏi chuyên môn nhưng thường gặp khó khăn trong khâu xây dựng. Thực tế, trong quá trình làm nghề, chúng tôi đã gặp rất nhiều trường hợp đáng tiếc:

  • Thi công xong không đạt chuẩn để cấp phép Bộ Y tế.

  • Hệ thống điện, nước, khí nén bố trí sai, phải đục phá lại toàn bộ khi lắp ghế nha.

  • Bố trí công năng chật hẹp, khiến Bác sĩ và trợ thủ vướng víu, nhanh mệt mỏi khi làm việc.

Sai lầm này bắt nguồn từ việc coi thi công nha khoa giống như làm nhà ở hay văn phòng thông thường. Nha khoa là không gian đặc thù y tế, đòi hỏi sự am hiểu sâu về luồng vận hành và kỹ thuật chuyên biệt.

Quy-trinh-thi-cong-nha-khoa
Quy Trình thi Công Nha Khoa

Quy trình thi công phòng khám nha khoa chuẩn thực tế Để một phòng khám vận hành trơn tru, chúng tôi áp dụng quy trình 5 bước nghiêm ngặt:

  1. Khảo sát mặt bằng dưới góc nhìn vận hành: Không chỉ đo đạc, chúng tôi tính toán luồng di chuyển của Bác sĩ – Bệnh nhân để tối ưu diện tích.

  2. Thiết kế công năng trước, thẩm mỹ sau: Một phòng khám đẹp mà bất tiện là thất bại. Chúng tôi ưu tiên sự tiện dụng trong thao tác trước khi phủ lên lớp áo thẩm mỹ.

  3. Thi công hệ thống kỹ thuật "ngầm" chuẩn xác: Hệ thống khí nén, hút trung tâm và điện nước phải được đồng bộ hóa ngay từ phần thô để tránh hỏng hóc, rò rỉ về sau.

  4. Hoàn thiện nội thất bền bỉ - sạch sẽ: Ưu tiên vật liệu dễ vệ sinh, kháng khuẩn, đảm bảo tiêu chuẩn vô trùng y tế nhưng vẫn mang lại cảm giác an tâm cho khách hàng.

  5. Nghiệm thu, bàn giao & Hỗ trợ hậu mãi: Chúng tôi đồng hành cùng Bác sĩ cho đến khi phòng khám đi vào hoạt động ổn định và hỗ trợ bảo trì định kỳ.

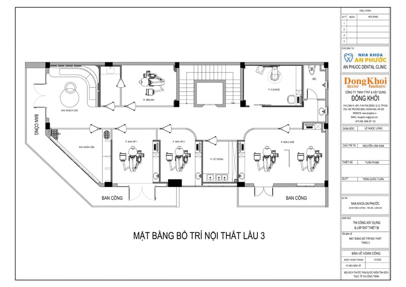
bản vẽ thi công nha khoa chuẩn
Bản vẽ 2D thi công nha khoa chuẩn về công năng

Chi phí thi công – Đừng nhìn mỗi con số Chi phí thi công phòng khám nha khoa không chỉ tính bằng số tiền trên mỗi mét vuông, mà phải tính bằng:

  • Sự ổn định của hệ thống trong 5-10 năm tới.

  • Khả năng dễ dàng nâng cấp, thêm ghế nha khi phòng khám phát triển.

  • Sự an tâm tuyệt đối khi làm thủ tục cấp phép hoạt động.

lỗ kỹ thuật nha khoa
Lỗ kỹ thuật nha khoa

Thông số lỗ ghế nha khoa :

lỗ ghế nha khoa
Lỗ ghế nha khoa

Chúng tôi làm nghề bằng sự trải nghiệm Với kinh nghiệm thực chiến tại nhiều công trình nha khoa, chúng tôi không chạy theo những bản vẽ "lung linh" nhưng xa rời thực tế. Chúng tôi chọn cách tư vấn thẳng, thật, tập trung vào độ bền và hiệu quả vận hành.

TOP